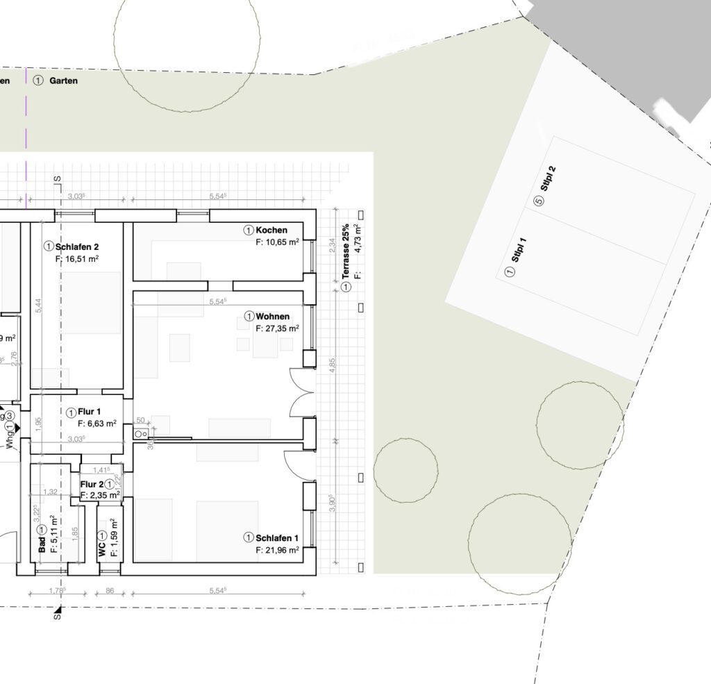
Komplett renovierte Erdgeschoss-Wohnung mit Garten im ruhigen Ortsteil von Sonthofen

+4


Viele unserer Immobilien werden bereits vor Veröffentlichung verkauft. Lassen Sie sich kostenlos vormerken und erhalten Sie neue Objekte zuerst per E-Mail – bevor sie auf den öffentlichen Markt kommen.